

賽圖士(CERTUSS)公司于1957年在德國克雷菲爾德成立,公司的創立者漢斯. 約阿希姆. 施羅德 為自己設定的目標是生產可靠、低噪聲、緊湊型的蒸汽發生器。 今天,賽圖士(CERTUSS)服務于分布在全球的超過80個不同行業的客戶,在歐洲市場中占有超過60%的市場份額,能夠為全世界的客戶提供高質量的“德國制造”產品,與客戶建立了可持續、長期的合作關系。
賽圖士(CERTUSS)遵照ASME、UL相關規定, 按照ISO 9001-2008和PED中的最高標準要求生產產品,其提供的蒸汽發生器占用空間小,功率在53千瓦到1320千瓦之間, 操作壓力達到32巴。
本公司提供完整的蒸汽發生系統,包括水處理單元(CVE),也可以根據客戶需求提供擴展式模塊化蒸汽系統、集裝箱式蒸汽系統。所有設備在德國工廠完成整體制造、安裝和調試,并在出廠前進行全面測試。賽圖士(CERTUSS)蒸汽發生系統的熱效率在91%到98%之間,燃料包括液體燃料、天然氣、燃料油(EL)等。公司為每套系統提供20年的完整備件支持服務,并將每套系統的電子文件記錄保留三十年以上的時間。
通過使用水管鍋爐原理,賽圖士(CERTUSS)蒸汽發生器能夠提供最高的安全性、可靠性、以及 高質量系統的即時可用性。
1、通過觸摸屏控制面板簡化蒸汽發生器的操作 和控制。所有蒸汽壓力方面的配置和設置都 可以通過觸摸屏完成。
2、將溫度約為90到95攝氏度的預加熱給水輸送 到蒸汽發生器中。通過預加熱能夠讓水中的 氧氣釋放出來,降低氧腐蝕的風險。
3、通過給水入口將水輸送到換熱器盤管中,水 到蒸汽的轉變階段將在換熱器盤管發生。
4、內置燃燒器的調節具有最快的響應時間,能 夠在1/10巴及以上范圍內精確調節蒸汽壓力。
5A、不用隔熱材料,將燃燒空氣從蒸汽發生器的 頂部引入,讓其穿過一個外殼,之后進入內 部的第二個殼體。
5B、 通過燃燒空氣吸入和風機將熱空氣抽入到三 重隔熱系統中,對燃燒空氣進行預熱,并降 低外部殼體的溫度。
6、在蒸汽生成之后,將通過蒸汽出口離開蒸汽 發生器,之后即可以使用。
7、燃氣出口與煙囪連接,煙囪上可以安裝或者 不安裝熱交換器。
8、通過蒸汽發生器盤管排污閥可以將盤管內部 沉積的污物沖刷干凈。
9、在壓力過高時,安全溢流閥將會自動打開, 將多余的蒸汽釋放出來。

Junior TC系列產品主要是小尺寸的蒸汽發生器,適合于蒸汽使用量較低的客戶使用。所有 Junior TC系列蒸汽發生器上都帶有容易使用的觸摸屏面板,能夠簡化操作。此系列產品是 最節約空間的蒸汽發生器產品??梢园凑蘸愣ǖ牧刻峁┱羝?, 也可以根據實際需要提供不 斷波動的蒸汽量,此系列產品可以在不到五分鐘的時間內提供蒸汽。
主要特征
節約空間;不需要基礎支持即可以進行安裝;堅固的鋼質結構;三重空氣隔熱層,在蒸汽發生器內部能夠形成 良好的空氣循環,并預熱燃燒空氣;集成有一級賽圖士(CERTUSS)燃燒器系統;具有降噪和減震系統,抗振動安裝方式;能夠實現經濟快速的能量轉換,輻射熱損較低;中央懸吊、能夠在垂直方向上伸縮的盤管,底 部排污;蒸發盤管可以更換;加熱系統可以在不拆除的情況下便捷、快速地 進行更換;全自動操作;每年365天,每周七天, 每天24小時全天候提 供客戶服務和備件;熱效率可以達到98%(在使用熱交換器的情況下);蒸汽輸出量完全按需調節;具有BMS兼容性,能夠與Profibus/CANbus、 Modbus、BACnet等兼容;7英寸觸摸控制(TC)屏。
*參考數值:天然氣10千瓦每標準立方米-8600千卡每標準立方米;液化氣25.8千瓦每標準立方米-22200千卡每標準立 方米。尺寸和重量數據都進行了向上或向下取整。超壓值的單位為兆帕或者巴。性能值的計算條件為:預熱給水溫度為 100攝氏度,蒸汽超壓值為1兆帕(10巴)。帶有煙氣回收系統的賽圖士(CERTUSS)燃燒器(減少氮氧化物排放量)

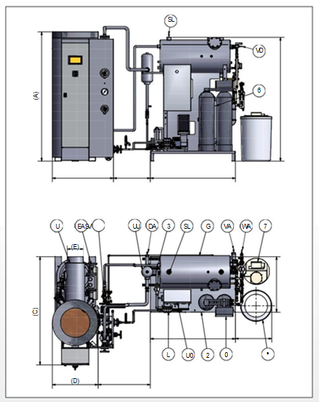
規格:Junior TC型蒸汽發生器;CVE供應單元;前置壓力泵;給水泵;給水箱;排污罐;化學品加藥裝置;水軟化裝置;鹽水罐;控制面板;汽水分離器;水過濾器。
DA:蒸汽接口; WA:水接口;SL:水罐排氣口(通到空氣中);SV:安全閥(通到空氣中); KA:排水口;KD:冷凝水接口;BA:燃料接口。


Universal TC系列產品能夠提供恒定量的蒸汽,也可以根據具體情況提供波動量的蒸汽,適合在 蒸汽用量較高的領域使用,這也是我公司性能最好的蒸汽發生器產品。由于加熱時間極短,可以 在不到五分鐘的時間內獲得飽和蒸汽。通過觸摸屏控制面板可以簡化操作,并提高當前壓力和配 置的概覽。除此之外,此系列蒸汽發生器還可以便捷地進行遠程操作。
主要特征 節約空間;不需要基礎支持即可以進行安裝;堅固的鋼質結構;三重空氣隔熱層,在蒸汽發生器內部能夠形成 良好的空氣循環,并預熱燃燒空氣;集成有一級賽圖士(CERTUSS)燃燒器系統;具有降噪和減震系統,抗振動安裝方式;能夠實現經濟快速的能量轉換,輻射熱損較低;中央懸吊,能夠在垂直方向上伸縮的盤管,底 部排污;蒸發盤管可以更換;加熱系統可以在不拆除的情況下便捷、快速地 進行更換;全自動操作;每年365天,每周七天, 每天24小時全天候提 供客戶服務和備件;熱效率可以達到98%(在使用熱交換器的情況下);功率可以在50%到100%范圍內換需調節(天燃 氣、液化氣);具有BMS兼容性,能夠與Profibus/CANbus、 Modbus、BACnet等兼容;7英寸觸摸控制(TC)屏。
*參考數值:天然氣10千瓦每標準立方米-8600千卡每標準立方米;液化氣25.8千瓦每標準立方米-22200千卡每標準立 方米。尺寸和重量數據都進行了向上或向下取整。超壓值的單位為兆帕或者巴。性能值的計算條件為:預熱給水溫度為 100攝氏度,蒸汽超壓值為1兆帕(10巴)。帶有煙氣回收系統的賽圖士(CERTUSS)燃燒器(減少氮氧化物排放量)

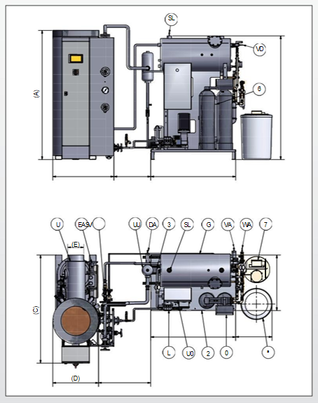
規格:Universal TC型蒸汽發生器;CVE供應單元;前置壓力泵;給水泵;給水罐;排污罐;化學品加藥裝置;水軟化裝置;鹽水罐;控制面板;汽水分離器;水過濾器。
GA:燃料接口;SV:安全閥(通到空氣中);DA:蒸汽接口;SL:水罐排氣口(通到空氣中);KA:排水口; WA:水接口; KD:冷凝水接口


Electrical E 6 – 72 M
電動蒸汽發生器E6-72M型的主要特征是加熱時間較短、空間要求較低。在數十年的使用過程中, 此系列產品的可靠性和效率已經得到了實踐的證實。 E6-72M型蒸汽發生器的輸出量可以調節, 操作和維護都較為簡便。此系列的蒸汽發生器產品的蒸氣輸出量在8kg/h到97kg/h之間。
主要特征:緊湊型結構,節約空間;適合于所有的標準門;能夠直接從前面接近,容易維護;能夠快速生成蒸汽;電加熱部件由不銹鋼制成,具有較大的加熱 面積;可以實現全自動操作;功能和故障指示都可以連接到客戶自己的中 央控制系統/建筑物維護控制系統中;每年365天,每周七天, 每天24小時全天候 提供客戶服務和備件;可以安裝在辦公區內;在二十年內提供備件;在客戶提出要求時, 鍋爐的所有部件都可以使用不銹鋼加工,以確保生產的蒸汽的純凈性。



Electrical E 100
主要特征:緊湊型結構,節約空間;能夠直接從前面接近,容易維護;能夠快速生成蒸汽;電加熱部件由不銹鋼制成,具有較大的加熱 面積;可以實現全自動操作;功能和故障指示都可以連接到客戶自己的PLC 控制系統/中央控制系統中;每年365天,每周七天,每天24小時全天候提 供客戶服務和備件;可以安裝在工作區內;在二十年內提供備件;在客戶提出要求時,鍋爐的所有部件都可以使 用不銹鋼加工,以確保生產的蒸汽的純凈性。



CVE供應單元-CERTUSS公司認證設備,適用于Junior & Universal TC系列產品
CVE供應單元設備能夠將所有需要與蒸汽發生器連接的附屬設備和設施集成在一個緊湊的結構中, 從而確保蒸汽發生器不需要連接過多的部件。 我們的CVE供應單元能夠整合提供所有與水供應和 處理相關的必要配件和附件。這種方式不但避免了現場復雜的安裝,還能夠通過工廠測試確保功 能的可靠性。
主要特征:雙重水軟化裝置,包括自動加藥裝置;鹽水罐;帶有預熱器的給水罐;汽水分離器;帶有自動后置冷卻器的排污罐;控制面板;污水余熱回收系統;前置壓力泵;恒溫器,電導率監控設備。


CVE供應單元的優勢
所有賽圖士(CERTUSS)蒸汽發生器的水供 應和處理部件都集成在一個單獨的裝置中,并由賽圖士(CERTUSS)公司進行測試和驗證;快速、經濟的調試之后即可以投入使用;維護操作非常便捷;由于在工廠內部完成了水、蒸汽和電氣連 接,因此安全性能夠得到保障;采用緊湊型設計,對空間的要求較低;帶有完整的次級配電裝置;采用具有耐久性的鍍鋅鋼框架;使用合格的高質量材料進行加工;提供3D圖紙,容易進行設計和布置。

集裝箱整合裝置優勢
可以定制;節約空間;實現機械和電氣部件的集成安裝,在現場只 需要進行蒸汽用戶連接即可;完全隔熱的壁面,能夠防止設備受到惡劣氣 候條件的影響;內部和外部都使用高等級鋼材加工;滿足歐洲標準的面漆,根據客戶要求涂漆;集裝箱內部的蒸汽用戶管道進行完全隔熱處 理;可以根據客戶的具體要求,選擇使用鋼質門 或者硬質聚氯乙烯(UPVC)門;完全內置的照明系統;完全內置的加熱系統;具有靈活性,可以永久布置、也可以臨時布 置;移動裝置;不需要修建單獨的鍋爐房;可以讓客戶充分利用 珍貴的空間;具有固定的用于維護 的操作空間;能夠降低現場安裝工 程的成本。


集裝箱整合裝置
CERTUSS公司提供的全配置集裝箱整合裝置可以將你的蒸汽發生器系統與其余部分完全隔離開來。 此整合裝置中包括蒸汽發生器系統操作過程中所需要的全部部件。
在連接主要的蒸汽用戶和調試之后,在不到五分鐘的時間內就可以向你提供蒸汽。這種整合裝置 還具有靈活性,可以永久性布置,也可以臨時布置。
在客戶提出要求的情況下,我們還可以提供部分安裝的蒸汽發生器系統。如果你選擇外包給其它 企業,我們可以向你提供整合裝置的咨詢和監督服務。
主要特征:蒸汽發生器;CVE供應設備;水軟化裝置;減壓站;蒸汽分配總管;帶有自動后置冷卻器的排污罐;汽水分離器;冷凝水總管;應急停機開關;以及更多。


所有優勢概覽:啟動時間在三到五分鐘內,即可以提供蒸汽;對安裝空間的要求較低;熱效率可以達到98%*;垂直定向,能夠降低腐蝕;水管高度較低,能夠確保操作安全性;可以實現不需要人員干預的全自動操作;噪聲較低,聲壓等級低于75分貝;能夠節約由于分散布置導致的管道成本;7英寸觸摸顯示屏;可以通過以太網、Wi-Fi或者GSM(蜂窩網絡)進行 遠程訪問;可以通過iPad或者iPhone進行遠程維護和控制;預防性維護:在出現問題之前提前發出通知;提供備份的多設備解決方案;使用三重空氣隔熱殼體,殼體溫度不會過高;維護操作簡單、便捷,在二十年內提供備件;每年365天,每周七天,每天24小時全天候提 供售后支持和服務;排水口較低,能夠降低對 環境的污染程度。
